LAFIRE.COM
Los Angeles Fire Department
Historical Archive

Fire Station 71 Photo Gallery


The Companies

The Fire Houses

  Mountain Patrol No. 3
    (To serve Bel Air Estates)
  Engine Company No. 71

1928
.
1929

10601 Chalon Road
.
10801 Bellagio Road
.
107 South Beverly Glen Boulevard

5/5/1928
.
1929
.
11/5/ 1948 - Present


Fire Station  71
107 South Beverly Glen Boulevard


Architectural Drawing

July 1947 issue of 
The FIREMAN'S GRAPEVINE

Fire Station  71
107 South Beverly Glen Boulevard

Date Opened

November 5, 1948

Land Cost $ 22,000.
Construction Cost:
    Architectural costs
    Contract costs
    Change orders
    Public Bldg. costs
.
$  11,098.34
   114,700.00
       4,696.04
      64,445.36
    194,939.74
Architect Austin-Field & Fry
Contractor Oltmans Construction Co.
Sq.ft. Site    168'x217' 28,905
Sq.Ft. Building  5,393
Planting Area 17,000
Telephone Number GRanite 9-9616

Fire Station  71
107 South Beverly Glen Boulevard

Architectural Drawing

July 1947 issue of 
The FIREMAN'S GRAPEVINE

 
DELIVERY PROMISED THE BID WAS AWARDED TO MACK.

  THE FIRE COMMISSION, ON THE RECOMMENDATION OF THE CHIEF ENGINEER, RETURNS THE BIDS TO THE PURCHASING AGENT WITH THEIR RECOMMENDATION AS TO WHICH BID SHOULD BE ACCEPTED.  IF THE PURCHASING AGENT CONCURS THE BID IS AWARDED BY CONTRACT.  IF THERE IS A DIFFERENCE OF OPINION, THE CITY CHARTER PROVIDES THAT THE PURCHASING AGENT AND THE DIRECTOR OF THE BUREAU OF BUDGET AND EFFICIENCY SHALL DECIDE AS TO THE BID TO BE ACCEPTED.  SUCH A CONDITION HAS NEVER ARISEN IN RECENT YEARS.

 
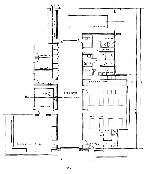
Within the next few months, construction will be started on a new station for Engine No. 71 on the southwest corner of Beverly Glen and Sunset Boulevards.  Since 1943, Engine No. 71 has been housed with Engine No. 37.  Since that time, efforts have been made to secure property on which to build a fire station but objections have been raised by residents in the locality against any location suggested.  Various sites have been checked, ranging all the way from Stone Canyon to Beverly Glen Boulevard.  Each one of these sites has been objectionable either from the standpoint of the local residents or from the Fire Department.

  In 1945, the Fire Department began concentrating its efforts on the site of Beverly Glen and Sunset but because of various objections, purchase was not completed until October 1946.  The State Aid Public Works Review Board approved this site February 5, 1947 and granted half the cost of the lot to the city of Los Angeles.  This is a large lot, somewhat irregular in shape, approximately 160' x 200' in size, but this size has been greatly reduced by setbacks which were placed on the property by the original subdivider.  These setbacks consist of a 50 ft. setback on Sunset, a 40 ft. setback on Beverly Glen, a 25 ft. setback on the south side and a 5 ft. setback on the south side and a 5 ft. setback on the west side., leaving us a small space to build a station.

  This station will be radically different in design from anything the Fire Department has at present.  The apparatus floor will be an "L" shape, sufficiently large to house three full size pieces of apparatus.  The new type standard door sliding to the sides will be used on the front or Beverly Glen side and doors similar to our present doors will be used on the opening towards Sunset.

  The building itself will be reasonably low, flat roof surfaced with white gravel.  The external surface facing Sunset and Beverly Glen will be mostly ornamental rock.  Other exterior surface will be brick and transite.  The ceiling in the dormitory and apparatus floor will be considerably higher than the other ceilings and light and ventilation will be furnished by clerestrory windows.

  Fluorescent lighting will be used in the kitchen, recreation room, and the captain's office.  The captain's office will be provided with a roll-away bed.

  The hose tower which was perhaps the most objectionable feature to the residents close to the location of this station will receive a new and novel treatment.  It will be built approximately 20 ft. long and 5 ft. wide, with vents in the bottom, and the wide side being mostly vents above the roof of the building.  The narrow side will be covered with corrugated transite which should make this tower look like anything else but a hose tower from the street.  

  The entire backyard will be graded and paved.  This will bring our lot nearly 5 ft. above the first lot west.  To compensate for this, instead of fencing the rear of the lot, hedging will probably be used.

  Plans for the station are entering the final stage and from present appearances will be finished by the last of August.  These plans are being drawn by the firm of Austin, Field, Fry & Criz, Architects, at 608 Chamber of Commerce Building.  This firm has made an honest effort to make this station acceptable in the neighborhood.  Contract for the construction of the station will be made with a private contractor by competitive bids after plans and specifications are finished. 
  

This article appeared in the July 1947 issue of  the FIREMAN'S GRAPEVINE.

Source: Engineer Ray Peralta Collection

Fire Station  71
107 South Beverly Glen Boulevard

1985

Captain Veryl Robinson
Firefighter Ray Peralta
Firefighter Kelly Faulkner
Engineer Dennis Hain

Source: OFFICIAL LAFD PHOTO

Fire Station  71
107 South Beverly Glen Boulevard

1990 Circa


 


LAFIRE.COM
Copyright 2000 All Rights Reserved.